ул. Алексея Афонченкова, 13-11
Ленинградская обл., Всеволожский р-н, Клубный посёлок Колтуши
Цена объекта:
38 000 000 Р
Телефон
+7 (812) 318 08 68
Садовая
Сенная
Спасская
Санкт-Петербург, ул. Ефимова, д.6, оф.13
Пн-Пт с 10.00 до 20.00
Ленинградская обл., Всеволожский р-н, Клубный посёлок Колтуши
Цена объекта:
38 000 000 Р
Телефон
+7 (812) 318 08 68Вид объекта
Коттедж
Количество комнат
8
Общая площадь
350 м2
Площадь участка
12 соток
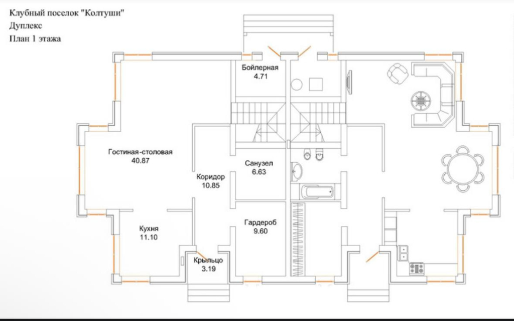
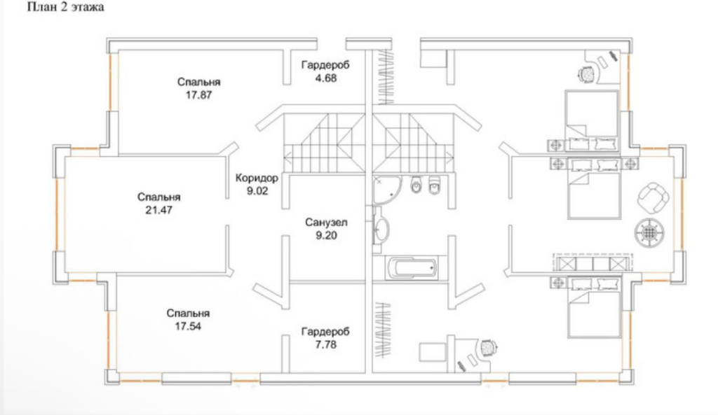
Продается дуплекс, общей площадью 350 м2 в Клубном посёлке Колтуши, два изолированных коттеджа под одной крышей. Идеально подходит для проживания одной большой семьи или двух разных. Локация: Расположен во Всеволожском районе в Клубном посёлке, 10 км от города. В поселке организована охраняемая территория с видеонаблюдением, асфальтированные дороги, освещенные улицы, детская площадка и ежедневный вывоз мусора. Коммуникации: Проведены все центральные коммуникации (Электричество, газ, вода) Интернет есть. Участок: Две самостоятельные половины разделены между собой зеленой изгородью из туй. Каждая половина имеет свой земельный участок по 6 соток. У дуплекса есть общая постройка с верандой и местом для хранения, а также с помещением для обустройства бани. Территория облагорожение различными растениями (туи, сосны, яблони, ивы и другие). Коттеджи: Общая площадь каждого коттеджа 175 м2, у каждого 2 полноценных этажа. Первый этаж: просторная гостиная, кухня, санузел, гардеробная, подлестничное пространство. Газовая котельная, обеспечивающая теплом весь дом. Первый этаж оснащен системой теплый пол. Второй этаж: 3 светлые спальни, гардеробная, санузел. Большое количество окон, высокие потолки, монолитная лестница. У одного из коттеджей пристроена терраса с теплыми окнами. Каждый коттедж выполнен в своем стиле.
Адрес
Ленинградская обл., Всеволожский р-н, Клубный посёлок Колтуши, ул. Алексея Афонченкова, 13-11
Готовность
Готов полн.
Фундамент
Бетонный
Крыша
Металлочерепица
Электричество
380
Вода
Водопровод
Газ
магистраль
Год постройки
2014
Состояние участка
Газон(луг)
Тип собственности
Приватизир.
Ленинградская обл., Всеволожский р-н, Клубный посёлок Колтуши
|
Цена объекта:
38 000 000 руб.
Телефон:
+7 (812) 318 08 68 |
Продается дуплекс, общей площадью 350 м2 в Клубном посёлке Колтуши, два изолированных коттеджа под одной крышей. Идеально подходит для проживания одной большой семьи или двух разных. Локация: Расположен во Всеволожском районе в Клубном посёлке, 10 км от города. В поселке организована охраняемая территория с видеонаблюдением, асфальтированные дороги, освещенные улицы, детская площадка и ежедневный вывоз мусора.
Коммуникации: Проведены все центральные коммуникации (Электричество, газ, вода)
Интернет есть.
Участок: Две самостоятельные половины разделены между собой зеленой изгородью из туй. Каждая половина имеет свой земельный участок по 6 соток. У дуплекса есть общая постройка с верандой и местом для хранения, а также с помещением для обустройства бани. Территория облагорожение различными растениями (туи, сосны, яблони, ивы и другие).
Коттеджи: Общая площадь каждого коттеджа 175 м2, у каждого 2 полноценных этажа.
Первый этаж: просторная гостиная, кухня, санузел, гардеробная, подлестничное пространство. Газовая котельная, обеспечивающая теплом весь дом. Первый этаж оснащен системой теплый пол.
Второй этаж: 3 светлые спальни, гардеробная, санузел. Большое количество окон, высокие потолки, монолитная лестница.
У одного из коттеджей пристроена терраса с теплыми окнами.
Каждый коттедж выполнен в своем стиле.
| Вид объекта | Коттедж |
| Количество комнат | 8 |
| Адрес | Ленинградская обл., Всеволожский р-н, Клубный посёлок Колтуши, ул. Алексея Афонченкова, 13-11 |
| Общая площадь | 350 м2 |
| Площадь участка | 12 соток |
| Готовность | Готов полн. |
| Фундамент | Бетонный |
| Крыша | Металлочерепица |
| Электричество | 380 |
| Вода | Водопровод |
| Газ | магистраль |
| Год постройки | 2014 |
| Состояние участка | Газон(луг) |
| Тип собственности | Приватизир. |
|
|
|
|
|
|
|
|
|
|
|
|
|
|
|
|
|
|
|
|
|
|
|
|
|
|
|
|
|
|
|
|
|
|
|
|
|
|
|
|
|
|
Задать вопрос
Написать письмо
Заказать звонок
Оставить заявку
Написать сообщение
Записаться на просмотр
Оставить отзыв
Отправить pdf на почту
Real Estate City Center was founded in 1996. Today it is one of the most well-known agencies in Saint Petersburg, a member of St. Petersburg Realtors’ Association, St. Petersburg Chamber of Real Estate, Russian Realtors Guild.
We provide a full range of services in the real estate market:
If you require advice or assistance in carrying out any operations in the real estate market we will be glad to answer your questions and do our job efficiently and on time.
For more information please contact us by phone or e-mail.
St-Petersburg, Efimova St., 6
+7 (812) 318 08 68
info@gcn-spb.ru
* If you need a response please leave your e-mail address
** If you wish to add attachments, please send it in follow-up e-mail after receiving a notification
Через 20 минут Ваш объект увидят агенты, Через 60 минут – наши Партнеры, Через 120 минут – Покупатели и Арендаторы
Записаться на собеседование
Отправить резюме